欢迎来到知嘟嘟! 联系电话:13336804447 卖家免费入驻,海量在线求购! 卖家免费入驻,海量在线求购!
知嘟嘟
我要发布
联系电话:13336804447
知嘟嘟经纪人
收藏
专利号: 201310492777X
申请人: 浙江工业大学
专利类型:发明专利
专利状态:已下证
专利领域: 流体压力执行机构;一般液压技术和气动技术
更新日期:2023-12-11
缴费截止日期: 暂无
价格&联系人
年费信息
委托购买

摘要:

权利要求书:

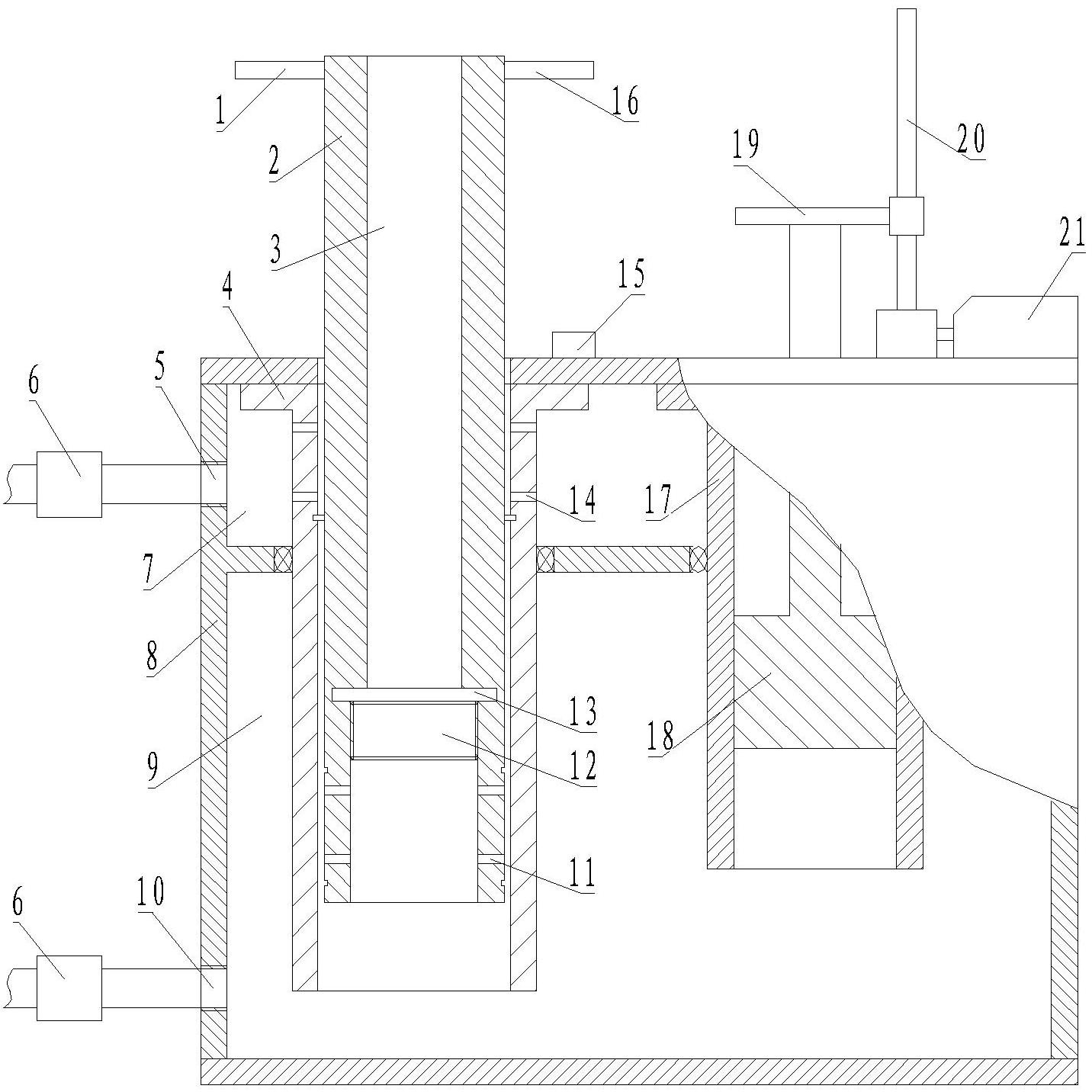
1.一种带体积补偿的无摩擦恒力输出气浮装置,其特征在于:包括输出气缸、补偿气缸、储气罐;所述输出气缸包括缸筒、长活塞;所述补偿气缸包括连杆活塞、补偿筒;

所述缸筒和补偿筒分别套装在储气罐内,所述储气罐和缸筒、补偿筒间形成储气腔,所述储气腔分为相互独立的上储气腔和下储气腔,所述缸筒的内腔、补偿筒的内腔与下储气腔连通;所述长活塞套装在缸筒内且与缸筒间存在极小间隙,所述连杆活塞套装在补偿筒内;所述一种带体积补偿的无摩擦恒力输出气浮装置还包括滚珠丝杠、电机、激光位移传感器、反光板;所述滚珠丝杠安装在储气罐外,所述连杆活塞通过连接座与滚珠丝杠连接,所述电机连接滚珠丝杠,所述反光板安装在长活塞上,所述激光位移传感器固定在储气罐外且和反光板位置相对;

所述储气罐上设有第一进气孔和第二进气孔,所述第一进气孔与第一储气腔相通,所述第二进气孔与第二储气腔相通;所述第一进气孔和第二进气孔分别通过气管与比例阀连接;

所述长活塞中心开有进气通孔和卸气通孔,所述进气通孔和卸气通孔间通过密封塞隔离,所述进气通孔与下储气腔相通;

所述长活塞上沿圆周均布第一径向节流孔,所述第一径向节流孔与进气通孔相通,所述第一径向节流孔沿轴向方向至少有两组;所述缸筒上沿圆周均布第二径向节流孔,所述第二径向节流孔与上储气腔相通;所述第一径向节流孔、第二径向节流孔内均安装有节流塞;

所述长活塞上设有第一卸压槽,所述第一卸压槽包含长活塞外圆柱面上的第一凹槽、第一凹槽内沿圆周均布的径向盲孔以及与径向盲孔相通的第一轴向孔;所述第一轴向孔一端通过卸气通孔内的第二凹槽与卸气通孔相通,所述第一轴向孔的另一端通过堵块密封;

所述第一凹槽至少有两组且位于第一径向节流孔的两侧;所述第一卸压槽与第一径向节流孔之间相互隔离;

所述缸筒上设有第二卸压槽,所述第二卸压槽包含缸筒内圆柱面上的第三凹槽、与第三凹槽相通的第二轴向孔,所述第二轴向孔另一端与储气罐外的大气相通;所述第三凹槽位于第二径向节流孔的下方,所述第二卸压槽与第二径向节流孔之间相互隔离。