欢迎来到知嘟嘟! 联系电话:13336804447 卖家免费入驻,海量在线求购! 卖家免费入驻,海量在线求购!
知嘟嘟
我要发布
联系电话:13336804447
知嘟嘟经纪人
收藏
专利号: 2021102476347
申请人: 山东科技大学
专利类型:发明专利
专利状态:已下证
专利领域: 测量;测试
更新日期:2023-12-11
缴费截止日期: 暂无
价格&联系人
年费信息
委托购买

摘要:

权利要求书:

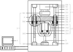
1.基于变形可控承压环的变刚度岩石力学试验系统,其特征在于,包括加载装置、变刚度调节装置、数据监测系统以及控制系统;其中:加载装置包括外框架、加载油缸、升降式加载梁、蓄能弹簧以及加载梁升降驱动机构;

加载油缸的缸体安装于外框架的顶部,且加载油缸朝向下方;

加载梁升降驱动机构与升降式加载梁相连,且用于带动所述升降式加载梁上下运动;

所述加载梁升降驱动机构包括多个竖向设置的滚珠丝杠以及丝杠驱动电机;

其中,每个滚珠丝杠的上端通过一个顶部丝杠支撑座安装于外框架的顶部,每个滚珠丝杠的下端通过一个底部丝杠支撑座安装于外框架的底座上;

所述升降式加载梁对应每个滚珠丝杠的螺母处分别设有一个螺母穿孔,每个所述滚珠丝杠的螺母分别经由一个所述螺母穿孔向上穿过所述升降式加载梁;

各个所述滚珠丝杠的螺母与各自对应的螺母穿孔内壁之间分别设有滚珠轴承;

蓄能弹簧有多个,且分别一一对应设置在每个滚珠丝杠的螺母处;其中,蓄能弹簧的上端与升降式加载梁的底部相连,下端与滚珠丝杠的螺母的下部相连;

变刚度调节装置包括承压环、刚度调节油缸、缓冲弹簧以及限位索;

其中,承压环顶梁连接在升降式加载梁的底部;刚度调节油缸位于承压环的内侧,刚度调节油缸的缸体固定于承压环顶梁上,且刚度调节油缸朝向下方;

缓冲弹簧的上端与刚度调节油缸的缸体相连,下端与刚度调节油缸的活塞杆相连;

限位索有多个,且各个限位索的顶部和底部分别对应连接在所述承压环顶梁和底梁上;

数据监测系统包括第一压力传感器、第二压力传感器、第三压力传感器以及位移传感器;

其中,第一压力传感器设置于所述加载油缸与升降式加载梁之间;

第二压力传感器设置于刚度调节油缸与承压环底梁之间;

第三压力传感器设置于外框架的底座上,该第三压力传感器的上方为试件放置区;

位移传感器的一端连接在承压环顶梁上,另一端连接在承压环底梁上;

其中,加载油缸、丝杠驱动电机、刚度调节油缸、第一压力传感器、第二压力传感器、第三压力传感器以及位移传感器分别通过线缆与所述控制系统相连。

2.根据权利要求1所述的基于变形可控承压环的变刚度岩石力学试验系统,其特征在于,

所述承压环由弹簧钢制成的;承压环的侧壁为弧形侧壁。

3.根据权利要求1所述的基于变形可控承压环的变刚度岩石力学试验系统,其特征在于,

所述限位索是由钢丝绳或钢索制成的。

4.一种试验系统超大刚度加载试验方法,基于权利要求1至3任一项所述的基于变形可控承压环的变刚度岩石力学试验系统,其特征在于,所述试验方法包括如下步骤:I.1.控制系统控制加载油缸对升降式加载梁进行加载;

I.2.升降式加载梁受载之后,同时对所述蓄能弹簧以及变刚度调节装置进行加载,进而通过变刚度调节装置对放置于外框架的底座上方的试件进行加载;

I.3.对试件持续加载至其发生失稳破坏,试件失稳破坏后,控制系统控制加载油缸停止加载,蓄能弹簧向上回弹,带动升降式加载梁,使其向上紧贴加载油缸,实现超大刚度加载。

5.一种试验系统加载刚度调节方法,基于权利要求1至3任一项所述的基于变形可控承压环的变刚度岩石力学试验系统,其特征在于,所述试验方法包括如下步骤:II.1.试验加载前,在控制系统中设定需要的试验系统加载刚度值,即预设加载刚度值;

II.2.开始加载后,第三压力传感器以及位移传感器分别将相应的测定量实时反馈给控制系统,控制系统根据预先确定的函数关系,计算出试验系统的实际加载刚度值;

II.3.控制系统将实际加载刚度值与预设加载刚度值进行对比,经过判断:若实际加载刚度值小于预设加载刚度值,则在控制系统的控制下,增大刚度调节油缸的加载力,减小低刚度承压环的变形量,增大变刚度调节装置的刚度;

若实际加载刚度值大于预设加载刚度值,则在控制系统的控制下,减小刚度调节油缸的加载力,增大低刚度承压环的变形量,减小变刚度调节装置的刚度;

通过调整变刚度调节装置的刚度,改变试验系统的实际加载刚度值,确保试验系统的实际加载刚度值全程保持恒定并等于预设加载刚度值。

6.根据权利要求5所述的试验系统加载刚度调节方法,其特征在于,定义第三压力传感器测得的压力值为F(t),位移传感器测得的变形值为X(t);

则步骤II.2中,控制系统中设定试验系统的实际加载刚度Ka与第三压力传感器测得的压力值F(t)和位移传感器测得变形值X(t)之间的函数关系为Ka=F(t)/X(t)。

7.一种不同刚度加载的岩石力学试验方法,基于权利要求1至3任一项所述的基于变形可控承压环的变刚度岩石力学试验系统,其特征在于,所述试验方法包括如下步骤:III.1.在试件放置区放置岩石试件,控制系统控制丝杠驱动电机转动,滚珠丝杠将升降式加载梁和变刚度调节装置移动至合适的高度位置,使承压环底梁与试件接触;

III.2.设定试验系统的预设加载刚度;然后,加载油缸开始加载,进而使试件受载,试件受载后,数据监测系统将各个传感器的数据实时传输至控制系统;

III.3.控制系统根据数据监测系统的反馈数据以及预设加载刚度,实时调节实际加载刚度,保证加载过程中实际加载刚度满足预设加载刚度并保持恒定;

III.4.加载装置持续加载直至试件失稳破坏,完成指定刚度加载试验;

III.5.设置不同预设加载刚度,进行多次加载,完成不同刚度加载岩石力学试验。