欢迎来到知嘟嘟! 联系电话:13336804447 卖家免费入驻,海量在线求购! 卖家免费入驻,海量在线求购!
知嘟嘟
我要发布
联系电话:13336804447
知嘟嘟经纪人
收藏
专利号: 2021103615775
申请人: 山东科技大学
专利类型:发明专利
专利状态:已下证
专利领域: 测量;测试
更新日期:2023-12-11
缴费截止日期: 暂无
价格&联系人
年费信息
委托购买

摘要:

权利要求书:

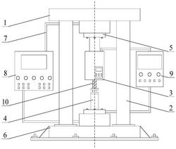
1.一种变频变强度动静组合加载岩石力学试验机,其特征在于,包括顶梁、立柱、动载施加装置、静载施加装置、监测装置、底座、加载控制系统和信号采集装置,其中,顶梁通过立柱连接至底座,底座上设置静载施加装置,静载施加装置上方的顶梁上设置动载施加装置,静载施加装置和动载施加装置均连接至加载控制系统,试验机上还设置有监测装置,监测装置连接至信号采集装置。

2.如权利要求1所述的变频变强度动静组合加载岩石力学试验机,其特征在于,动载施加装置包括外壳、蓄能油缸、冲击螺杆、引发装置和旋转控制器,蓄能油缸连接至顶梁,蓄能油缸输出端外侧设置外壳,外壳为钢制筒状结构,蓄能油缸输出端连接冲击螺杆,冲击螺杆置于外壳内,冲击螺杆连接引发装置,引发装置穿过外壳连接旋转控制器,旋转控制器连接至加载控制系统。

3.如权利要求2所述的变频变强度动静组合加载岩石力学试验机,其特征在于,冲击螺杆包括蓄能弹簧、杆体和加载底盘,蓄能弹簧一端连接至蓄能油缸输出端,蓄能弹簧另一端连接杆体,杆体连接至加载底盘,杆体表面竖向设置传动螺纹,杆体通过传动螺纹连接至引发装置,蓄能油缸连接至加载控制系统。

4.如权利要求3所述的变频变强度动静组合加载岩石力学试验机,其特征在于,加载底盘为钢制圆盘,加载底盘半径小于外壳内径。

5.如权利要求3所述的变频变强度动静组合加载岩石力学试验机,其特征在于,引发装置包括稳定器、肋板、传动杆和齿轮,齿轮为一侧设置轮齿的非对称齿轮,齿轮通过传动螺纹啮合至杆体,齿轮中部设置通孔,通孔内设置肋板,传动杆通过肋板连接至齿轮,传动杆穿过肋板的一端设置稳定器,传动杆另一端连接至旋转控制器。

6.如权利要求5所述的变频变强度动静组合加载岩石力学试验机,其特征在于,稳定器为钢制实心圆柱体。

7.如权利要求5所述的变频变强度动静组合加载岩石力学试验机,其特征在于,静载施加装置包括加载油缸和静载加压台,静载加压台设置于底座上,静载加压台上设置加载油缸,加载油缸连接至加载控制系统。

8.如权利要求7所述的变频变强度动静组合加载岩石力学试验机,其特征在于,监测装置包括上传感器、下传感器、动载传感器和蓄能传感器,上传感器、下传感器、动载传感器和蓄能传感器均为应力传感器,蓄能油缸和外壳之间设置上传感器,静载加压台和加载油缸之间设置下传感器,外壳内设置动载传感器,动载传感器一端固定于外壳内部上表面,另一端固定于加载底盘,蓄能油缸和蓄能弹簧之间设置蓄能传感器。

9.一种如权利要求8所述的变频变强度动静组合加载岩石力学试验机的静态加载试验方法,其特征在于,操作步骤如下:

(1)将煤岩石试件固定在静载加压台上;

(2)通过加载控制系统控制加载油缸对煤岩石试件施加不同轴压,实现静态加载;

(3)利用上传感器和下传感器监测静态加载过程中煤岩体应力数据并计算得到应变数据,记录在信号采集装置内,完成静态加载试验。

10.一种如权利要求8所述的变频变强度动静组合加载岩石力学试验机的动静组合加载试验方法,其特征在于,操作步骤如下:(1)将煤岩石试件固定在静载加压台上,通过加载控制系统控制加载油缸对煤岩石试件施加轴压,施加轴压小于煤岩石单轴抗压强度,实现静态加载,并利用上传感器和下传感器监测静态加载过程中煤岩体应力数据并计算得到应变数据,记录在信号采集装置内;

(2)根据试验方案设计的动载强度和蓄能弹簧自身的劲度系数确定蓄能弹簧所需的压缩变形值,加载控制系统控制蓄能油缸压缩蓄能弹簧至压缩变形值,蓄能传感器监测蓄能载荷大小;

(3)控制旋转控制器设定转动圆频率,利用传动杆旋转带动齿轮作用在杆体上,使得杆体带动加载底盘做轴向简谐运动,加载底盘通过外壳对煤岩石试件进行设定频率强度下的动载施加,动载传感器对动载荷频率和强度进行监测;

(4)调整蓄能弹簧的压缩变形值和转动圆频率,重复步骤(2)(3),进行不同频率强度下的动载施加,直至煤岩石破坏;

(5)试验结束后,加载油缸停止加载,纪录信号采集装置内的试验数据,并计算岩石试件破坏过程中蓄能弹簧压缩后的内部弹性能。