欢迎来到知嘟嘟! 联系电话:13336804447 卖家免费入驻,海量在线求购! 卖家免费入驻,海量在线求购!
知嘟嘟
我要发布
联系电话:13336804447
知嘟嘟经纪人
收藏
专利号: 2019112923208
申请人: 中国矿业大学
专利类型:发明专利
专利状态:已下证
专利领域: 测量;测试
更新日期:2024-01-05
缴费截止日期: 暂无
价格&联系人
年费信息
委托购买

摘要:

权利要求书:

1.一种可调振幅与频率的水平单向振动台,包括支架(1)、振动台面(2)以及驱动机构(3),所述振动台面(2)设置于支架(1)上方,在驱动机构(3)的驱动下于支架(1)上水平往复运动;其特征在于,所述驱动机构(3)包括变频电机(31)、减速箱(32)以及偏心调节机构(33);所述偏心调节机构(33)包括Π形滑槽(331)、U形滑槽(332)以及偏心轴(333);所述Π形滑槽(331)固定连接于振动台面(2)底面中心处,其滑槽延伸方向平行于振动台面(2)且垂直于振动台面(2)运动方向;所述U形滑槽(332)通过联轴器(34)连接于竖直布置于振动台面(2)中心下方的减速箱输出轴(321)的端部;所述偏心轴(333)包括偏心轴滑块(3331)和圆柱形偏心轴销(3332),所述偏心轴滑块(3331)设置于U形滑槽(332)内,与U形滑槽(332)内壁形状相匹配,并可于U形滑槽(332)内滑动,根据所需振幅调整其于U形滑槽(332)内的位置并锁定;所述偏心轴销(3332)垂直设置于偏心轴滑块(3331)一端部上方,用于插入Π形滑槽(331)内,在偏心轴(333)转动过程中带动振动台面(2)水平往复运动。

2.根据权利要求1所述的可调振幅与频率的水平单向振动台,其特征在于,所述Π形滑槽(331)长度大于振动台面(2)最大设计振幅的两倍,内槽宽度等于偏心轴销(3332)的外径,内槽深度大于偏心轴销(3332)的高度。

3.根据权利要求1所述的可调振幅与频率的水平单向振动台,其特征在于,所述偏心轴滑块(3331)一侧面沿其滑动方向成型有多个凹槽(33311),所述U形滑槽(332)与之相对应的侧壁上成型有设置高度与凹槽(33311)相匹配的螺钉孔(3321),所述螺钉孔(3321)内成型有内螺纹,螺钉(3322)穿过螺钉孔(3321),端部嵌入凹槽(33311)以锁定偏心轴滑块(3331)。

4.根据权利要求3所述的可调振幅与频率的水平单向振动台,其特征在于,所述凹槽(33311)为半球凹槽,其个数为偶数,每两个为一组,多组凹槽(33311)交错分布,每组中两个凹槽(33311)之间的间距相等,相邻两组凹槽(33311)之间的间距相等;所述螺钉孔(3321)为沿偏心轴滑块(3331)滑动方向设置的两个,两个螺钉孔(3321)之间的间距与同组两个凹槽(33311)之间的间距相等;所述螺钉(3322)端部为与半球凹槽(33311)相匹配的半球形。

5.根据权利要求3所述的可调振幅与频率的水平单向振动台,其特征在于,所述偏心轴滑块(3331)另一侧面沿其滑动方向还成型有一水平凸键(33312),所述U形滑槽(332)与之相对应的侧壁上成型有与水平凸键(33312)相匹配的水平凹槽(3323)。

6.根据权利要求1所述的可调振幅与频率的水平单向振动台,其特征在于,所述偏心调节机构(33)还包括一润滑机构,所述润滑机构包括分别设置于Π形滑槽(331)两侧的两个储油腔(5)以及与储油腔(5)对应连通、分别设置于Π形滑槽(331)两侧壁上的两个出油孔(3311);所述储油腔(5)内灌注润滑油,当偏心轴销(3332)于Π形滑槽(331)内滑动时,摩擦出油,润滑Π形滑槽(331);每个储油腔(5)外壁上均设置有注油孔(51),所述注油孔(51)与储油腔(5)内部连通。

7.根据权利要求1所述的可调振幅与频率的水平单向振动台,其特征在于,电机功率的计算公式为: 其中,Pmax为变频电机最大功率(W);m为振动台面

(2)、Π形滑槽(331)和最大试验试件质量之和(kg);A为振动台面(2)最大振幅(m);f为试验所需最大频率(Hz);1.2为机械效率系数;所述振动台所用变频电机的最大功率大于等于该计算值。

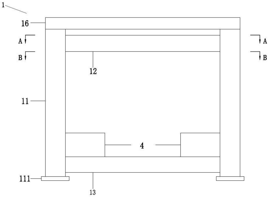
8.根据权利要求1所述的可调振幅与频率的水平单向振动台,其特征在于,所述支架(1)为长方体,包括四个立柱(11)、两个上横梁(12)、两个下横梁(13)、两个上纵梁(14)以及两个下纵梁(15);四个立柱(11)的下端均设置有柱脚(111),柱脚(111)上设置有用于与螺栓配合、固定支架的螺栓孔;所述支架(1)顶面沿上横梁(12)延伸方向设置有两条平行的滑轨梁(16),每一所述滑轨梁(16)上固定连接有滑轨(17);所述振动台面(2)下表面固定连接有与滑轨(17)配合设置的滑块(22),所述滑块(22)于滑轨(17)上滑动,带动振动台面(2)相对于支架(1)水平往复运动;所述振动台面(2)上设置有多个通孔(21),每一所述通孔(21)内设置有内螺纹,所述通孔(21)在水平面内呈矩阵整齐排列。

9.根据权利要求8所述的可调振幅与频率的水平单向振动台,其特征在于,所述支架(1)下横梁(13)上还安装有配重块(4),所述配重块(4)的质量大于等于振动台面(2)、试验试件以及Π形滑槽(331)质量之和的20倍。

10.根据权利要求8所述的可调振幅与频率的水平单向振动台,其特征在于,所述支架(1)还包括上横板(18)和下横板(19),所述上横板(18)两侧分别固定连接于两个对称设置的上横梁(12)的上表面,所述下横板(19)两侧分别固定连接于两个对称设置的上横梁(12)的下表面;所述上横板(18)中心开第一圆孔,所述第一圆孔内固定连接有轴承(181),所述轴承(181)内壁与U形滑槽(332)下方的联轴器(34)相匹配;所述下横板(19)中心开第二圆孔(191),所述第二圆孔(191)的直径大于联轴器(34)外径;所述变频电机(31)和减速箱(32)固定连接于下横板(19)上。