欢迎来到知嘟嘟! 联系电话:13336804447 卖家免费入驻,海量在线求购! 卖家免费入驻,海量在线求购!
知嘟嘟
我要发布
联系电话:13336804447
知嘟嘟经纪人
收藏
专利号: 2017101284470
申请人: 杨松
专利类型:发明专利
专利状态:已下证
更新日期:2024-02-23
缴费截止日期: 暂无
价格&联系人
年费信息
委托购买

摘要:

权利要求书:

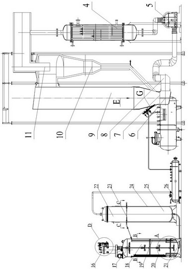
1.一种制备不溶性硫磺工艺装置,其特征是:包括回收氮气组件、喷雾造粒塔、液氮储罐、硫磺蒸发器;回收氮气组件包括换热器、罗茨风机组件;喷雾造粒塔包括落料管、布风板、风帽、风室、喷枪组件、雾化篦组件、喷雾造粒塔体、返料器、排气筒、液氮储罐;硫磺蒸发器包括饱和蒸汽加热釜组件、过热器、过热硫磺蒸汽中间罐、硫磺粉储罐,硫磺粉储罐、饱和蒸汽加热釜组件、过热器、过热硫磺蒸汽中间罐依次连接;饱和蒸汽加热釜组件包括饱和蒸汽加热釜体、饱和蒸汽加热盘管、蒸腾对流管、循环对流管;过热器包括分布器组件、热风加热炉体、热风加热夹套;过热硫磺蒸汽中间罐与喷枪组件连接。

2.根据权利要求1所述的一种制备不溶性硫磺工艺装置,其特征是:排气筒、换热器、罗茨风机组件、风室、喷雾造粒塔体、返料器依次连接并首尾相接形成一个闭合循环流体通道。

3.根据权利要求1所述的一种制备不溶性硫磺工艺装置,其特征是:所述换热器为立式管壳式换热器,回收氮气走管程,回收氮气较高的流速冲刷使不溶性硫磺不易堵塞。

4.根据权利要求1所述的一种制备不溶性硫磺工艺装置,其特征是:围绕落料管的3-4排风帽向同一个方向的开孔,导向氮气螺旋上升,为防止混合流体直接落入落料管和扰动布风均匀,不溶性硫磺与氮气混合流体经雾化篦组件的挡环阻挡向喷雾造粒塔体壁切线两侧抛射。

5.根据权利要求1所述的一种制备不溶性硫磺工艺装置,其特征是:所述饱和蒸汽加热釜组件与过热器之间通过蒸腾对流管、分布器组件、循环对流管连接形成闭合循环流体通道。