欢迎来到知嘟嘟! 联系电话:13336804447 卖家免费入驻,海量在线求购! 卖家免费入驻,海量在线求购!
知嘟嘟
我要发布
联系电话:13336804447
知嘟嘟经纪人
收藏
专利号: 202420454649X
专利类型:实用新型
专利状态:未下证
专利领域: 暂无
更新日期:2024-11-13
缴费截止日期: 暂无
价格&联系人
年费信息
委托购买

摘要:

权利要求书:

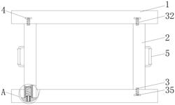
1.一种光伏用铝边框,包括横板(1),其特征在于:所述横板(1)的数量为两个,所述横板(1)的内部滑动连接有多个限位板(2),所述横板(1)和限位板(2)均为凹形设计,所述限位板(2)的内部设置有限位单元(3);

所述限位单元(3)包括开设在限位板(2)内部的多个安装槽(31),所述横板(1)和限位板(2)的前端均开设有多个滑槽(32),所述安装槽(31)的内部固定连接有弹簧(33),所述弹簧(33)的一端固定连接有推板(34),且推板(34)与安装槽(31)滑动连接,所述推板(34)的前端固定连接有连接件(35),且连接件(35)与滑槽(32)滑动连接,所述推板(34)的底部固定连接有插杆(36),且插杆(36)远离推板(34)的一端贯穿限位板(2),所述横板(1)的内部开设有多个插槽(37),且插杆(36)与插槽(37)活动连接。

2.根据权利要求1所述的一种光伏用铝边框,其特征在于:所述连接件(35)的表面套设有拨片(4),且拨片(4)可与手指相贴。

3.根据权利要求1所述的一种光伏用铝边框,其特征在于:所述限位板(2)的一侧固定连接有拉动件(5),且拉动件(5)可与手掌相贴。

4.根据权利要求1所述的一种光伏用铝边框,其特征在于:所述安装槽(31)的内部固定连接有多个橡胶垫(6),且橡胶垫(6)与推板(34)相贴。

5.根据权利要求1所述的一种光伏用铝边框,其特征在于:所述限位板(2)的内部滚动连接有多个滚珠(7),且滚珠(7)与插杆(36)滑动连接。

6.根据权利要求1所述的一种光伏用铝边框,其特征在于:所述插槽(37)的内部固定连接有摩擦垫(8),且摩擦垫(8)与插杆(36)相贴。

我要求购
我不想找了,帮我找吧
您有专利需要变现?
我要出售
智能匹配需求,快速出售