欢迎来到知嘟嘟! 联系电话:13336804447 卖家免费入驻,海量在线求购! 卖家免费入驻,海量在线求购!
知嘟嘟
我要发布
联系电话:13336804447
知嘟嘟经纪人
收藏
专利号: 2022216755266
申请人: 梁爽
专利类型:实用新型
专利状态:已下证
专利领域: 测量;测试
更新日期:2024-12-18
缴费截止日期: 暂无
价格&联系人
年费信息
委托购买

摘要:

权利要求书:

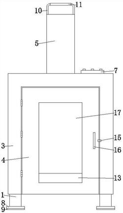
1.一种基于建筑施工的质量检测设备,其特征在于:包括倒U型框,所述倒U型框的底部设有连接倒U型框的横板,所述倒U型框的外侧设有壳体,所述壳体的一侧铰接设有门体,所述倒U型框的顶部设有贯穿倒U型框的液压缸,所述液压缸的输出端设有压力传感器,所述倒U型框的顶部设有控制器,所述控制器与液压缸和压力传感器电性连接。

2.根据权利要求1所述的一种基于建筑施工的质量检测设备,其特征在于:所述倒U型框的底部设有支脚,所述支脚的底部设有防滑垫。

3.根据权利要求1所述的一种基于建筑施工的质量检测设备,其特征在于:所述液压缸的顶部设有把手,所述把手上套接设有防滑套。

4.根据权利要求1所述的一种基于建筑施工的质量检测设备,其特征在于:所述倒U型框内设有对称设置的限位耳,所述横板上放置设有放置盘,所述放置盘上设有与限位耳相配合的凸起。

5.根据权利要求1所述的一种基于建筑施工的质量检测设备,其特征在于:所述门体上设有与壳体相配合的锁体,所述门体上设有拉手。

6.根据权利要求1所述的一种基于建筑施工的质量检测设备,其特征在于:所述门体上设有观察窗。