欢迎来到知嘟嘟! 联系电话:13336804447 卖家免费入驻,海量在线求购! 卖家免费入驻,海量在线求购!
知嘟嘟
我要发布
联系电话:13336804447
知嘟嘟经纪人
收藏
专利号: 2021112573606
申请人: 长安大学
专利类型:发明专利
专利状态:已下证
专利领域: 测量;测试
更新日期:2024-01-05
缴费截止日期: 暂无
价格&联系人
年费信息
委托购买

摘要:

权利要求书:

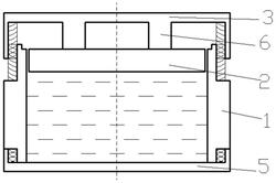
1.一种测试压力作用下土样孔隙特征的压力容器,其特征在于,包括圆形的桶体(1)、垫板(2)、桶盖(3)和底盖(5);所述桶体(1)内径与环刀的内径相等,所述桶体(1)的上端螺纹连接所述桶盖(3),所述桶体(1)的上端沿内表面设置有与所述环刀外径匹配的环形阶梯槽(4),所述桶体(1)的下端螺纹连接所述底盖(5);所述垫板(2)的外径小于桶体(1)的内径;所述桶盖(3)的内表面中心设置有向下凸出的环形凸台(6);所述桶体(1)、垫板(2)、桶盖(3)和底盖(5)的材质为工程塑料。

2.根据权利要求1所述的测试压力作用下土样孔隙特征的压力容器,其特征在于,所述桶体(1)的上端外表面和下端外表面均设置有外螺纹(7),所述桶盖(3)的内壁和底盖(5)的内壁设置有与外螺纹匹配的内螺纹(8)。

3.根据权利要求2所述的测试压力作用下土样孔隙特征的压力容器,其特征在于,所述外螺纹(7)和内螺纹(8)的螺距为2mm,牙高为2mm;所述桶盖(3)包含盖底和盖壁,所述环形凸台(6)的高度低于所述盖壁的高度2mm。

4.根据权利要求1所述的测试压力作用下土样孔隙特征的压力容器,其特征在于,所述垫板(2)上均匀竖向设置有多条垫板通孔,每个垫板通孔的直径为1mm;所述底盖(5)上均匀竖向设置有多条底盖通孔,每个底盖通孔的直径为1mm。

5.根据权利要求1所述的测试压力作用下土样孔隙特征的压力容器,其特征在于,所述垫板(2)的直径小于所述环刀的内径1mm;所述环形阶梯槽(4)的宽度与环刀的壁厚相等。

6.根据权利要求1所述的测试压力作用下土样孔隙特征的压力容器,其特征在于,所述桶体(1)的高度为H,所述环形阶梯槽(4)的高度为A,所述环刀的高度为B,所述垫板(2)的高度为C,H、A、B和C之间满足:H=A+B+C。

7.根据权利要求1所述的测试压力作用下土样孔隙特征的压力容器,其特征在于,所述桶盖(3)的外表面均匀设置有一圈刻度线,所述刻度线将所述桶盖(3)外表面均分为200格。

8.根据权利要求1所述的测试压力作用下土样孔隙特征的压力容器,其特征在于,所述桶体(1)的外表面设有1个标记线。

9.根据权利要求1所述的测试压力作用下土样孔隙特征的压力容器,其特征在于,所述桶体(1)、垫板(2)、桶盖(3)和底盖(5)的材质为PEEK。

10.一种压力作用下土样孔隙特征的测试方法,利用如权利要求1所述的压力容器,其特征在于,包括以下步骤:

步骤一、用两个环刀在同一块土样上分别切取1号试样和2号试样:将土样上面朝下,采用内直径61.8mm、高20mm、壁厚1mm的环刀切取1号试样;将土样上面朝上,采用内直径

61.8mm、高20mm、壁厚1mm的环刀切取2号试样;

步骤二、对2号试样进行压缩试验:使用固结仪参照土工试验方法标准,将2号试样连同切取2号试样的环刀一起置入固结容器中;对2号试样加压至预定压力,待变形稳定后,测出预定压力下2号试样的压缩量;

步骤三:对1号试样加压:将1号试样连同切取1号试样的环刀且刀口朝上置于桶体的环形阶梯槽上,将垫板居中放置在所述1号试样的中心,向下推垫板,使1号试样落入桶体内,拿走切取1号试样的环刀;先将底盖旋转连接到桶体,再将桶盖旋转连接到桶体;旋转桶盖,控制桶盖的竖向转进量等于步骤二中压缩量。

步骤四:核磁共振试验:对1号试样进行核磁共振试验,得到1号试样在预定压力作用下的孔隙特征,即为土样在预定压力作用下的孔隙特征。