欢迎来到知嘟嘟! 联系电话:13336804447 卖家免费入驻,海量在线求购! 卖家免费入驻,海量在线求购!
知嘟嘟
我要发布
联系电话:13336804447
知嘟嘟经纪人
收藏
专利号: 202021401346X
申请人: 伯莱塔智能装备(江苏)有限公司
专利类型:实用新型
专利状态:已下证
专利领域: 一般的物理或化学的方法或装置
更新日期:2025-01-02
缴费截止日期: 暂无
价格&联系人
年费信息
委托购买

摘要:

权利要求书:

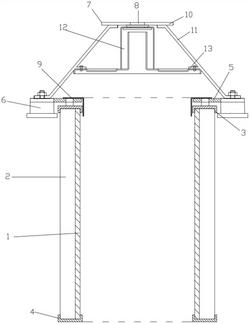
1.一种旋转式滤筒,包括滤芯(1)、包覆在滤芯外围的折叠滤布(2),其特征在于,所述滤芯(1)和折叠滤布(2)的上端扣设有上端盖(3),下端扣设有下端盖(4),所述上端盖(3)的上侧通过螺栓连接有上盖板(5),所述上盖板(5)的外围连接有三个均匀分布的挂耳(6),并通过三个挂耳(6)连接有转翼三角架(7),所述转翼三角架(7)的中心设有用于连接电机的轴孔(8)。

2.根据权利要求1所述的一种旋转式滤筒,其特征在于,所述上端盖(3)的内侧包覆有限位法兰(9),所述限位法兰(9)的上侧与上盖板(5)顶部连接。

3.根据权利要求1所述的一种旋转式滤筒,其特征在于,所述转翼三角架(7)包括转盘(10)、与转盘外围连接的三根连杆(11),所述轴孔(8)设于转盘(10)中心。

4.根据权利要求3所述的一种旋转式滤筒,其特征在于,所述转盘(10)下侧连接有呈凸形的支撑台(12),所述连杆(11)的内侧固定连接有短杆(13),所述支撑台(12)的外圈与短杆(13)通过螺钉连接。