欢迎来到知嘟嘟! 联系电话:13336804447 卖家免费入驻,海量在线求购! 卖家免费入驻,海量在线求购!
知嘟嘟
我要发布
联系电话:13336804447
知嘟嘟经纪人
收藏
专利号: 2015110156557
申请人: 浙江工业大学
专利类型:发明专利
专利状态:已下证
专利领域: 测量;测试
更新日期:2023-08-24
缴费截止日期: 暂无
价格&联系人
年费信息
委托购买

摘要:

权利要求书:

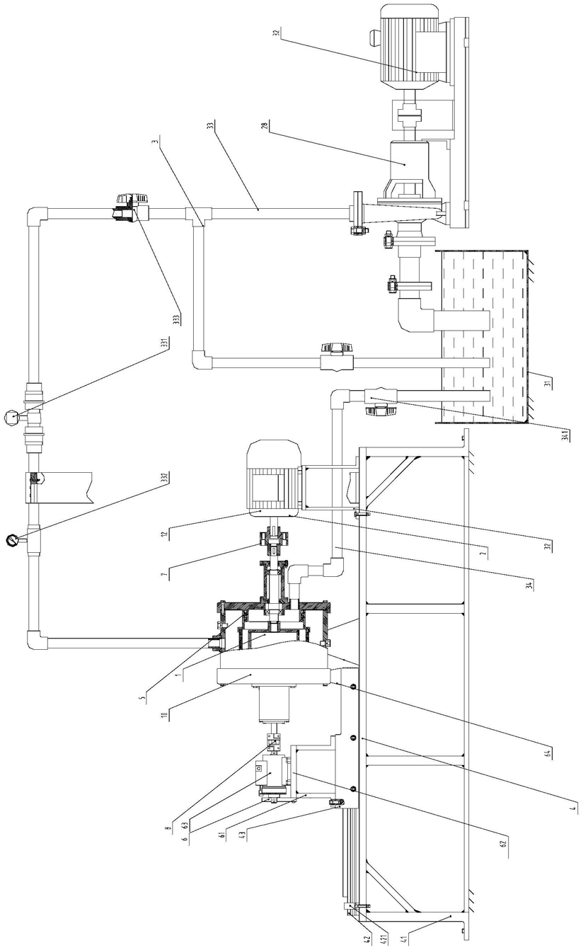
1.基于仿生的水下射流表面减阻测试装置,其特征在于:包括射流部件、动力输入组件、配水组件、移动组件、磁流体密封组件和信号处理组件,所述的动力输入组件的电机通过第一联轴器与所述的射流部件的输入轴相连,所述的射流部件的输出轴通过第二联轴器与所述的信号处理组件的扭矩信号耦合器相连,所述的信号处理组件、所述的射流部件都安装在所述的移动组件上;所述的配水组件的进水管与所述的射流部件的入水口管道连接,所述的配水组件的出水管与所述的射流部件的出水口管道连通;所述的射流部件通过磁流体密封组件密封;

所述的射流部件包括密封筒组件、外筒组件、内筒组件、输入轴和输出轴,所述的密封筒组件、所述的外筒组件和所述的内筒组件依次从外向内同轴排布形成三层的套筒式结构;所述的输入轴的动力输入端与所述的动力输入组件的动力输出端相连,所述的外筒组件右侧装有磁流体密封组件,并且所述的外筒组件通过相应的磁流体密封组件与所述的密封筒组件密封,所述的内筒组件密封装在所述的输入轴穿过密封筒组件的密封筒右端盖的动力输出端,并保证所述的内筒组件与所述的输入轴同步运转;所述的输出轴的动力输入端与所述的外筒组件的外筒左端盖密封连接,所述的输出轴的动力输出端通过第二联轴器与所述的信号处理组件连接;

所述的配水组件包括水槽、离心泵、进水管和出水管,所述的离心泵的进水口通过管路引入所述的水槽内,所述的离心泵的出水口与所述的进水管的进水端相连,所述的进水管的出水端与所述的密封筒组件的入水孔相连,所述的出水管的进水端与密封筒组件的出水孔连通,所述的出水管的出水端引入所述的水槽内,实现测试用水的循环;所述的进水管上设置流量计和压力表,所述的出水管上设有球阀;

所述的移动组件包括底部支架、V型导轨和V型导轨移动平台,所述的V型导轨水平安装在所述的支架的上部,所述的V型导轨移动平台与所述的V型导轨滑动连接,所述的V型导轨移动平台上安装所述的信号处理组件,所述的射流部件、所述的动力输出组件均安装在所述的底部支架上,并保持所述的信号处理组件、所述的射流部件和所述的动力输出组件处于同一轴线上;

所述的信号处理组件包括扭矩信号耦合器基座、键槽板、扭矩信号耦合器和信号处理器,所述的扭矩信号耦合器基座安装在所述的V型导轨移动平台上,所述的扭矩信号耦合器基座上部安装所述的键槽板,所述的扭矩信号耦合器的一端通安装在所述的键槽板上,另一端通过第二联轴器与所述的输出轴的动力输出端相连;所述的扭矩信号耦合器的信号输出端与外部的信号处理器信号连接。

2.如权利要求1所述的基于仿生的水下射流表面减阻测试装置,其特征在于:所述的密封筒组件包括带有入水孔的密封筒、密封筒左端盖和密封筒右端盖,所述的密封筒左端盖、密封筒右端盖分别密封安装在所述的密封筒的两端;所述的外筒组件设置在所述的密封筒的内部,所述的外筒组件包括筒形试验样件、外筒左端盖和外筒右端盖,所述的外筒左端盖和所述的外筒右端盖分别密封安装在所述的试验样件的两端,并且所述的外筒右端盖外侧配有磁流体密封组件,所述的外筒右端盖通过相应的磁流体密封组件实现外筒右端盖与密封筒右端盖圆台处之间的密封;所述的内筒组件包括内筒、内筒左端盖和内筒右端盖,其中所述的内筒左端盖和所述的内筒右端盖密封安装在所述的内筒的两端,所述的内筒右端盖与所述的输入轴的输出端螺接,保持内筒右端盖、所述的外筒右端盖以及所述的密封筒右端盖同轴。

3.如权利要求2所述的基于仿生的水下射流表面减阻测试装置,其特征在于:所述的密封筒上壁设有用于排气的第一螺纹孔,所述的密封筒的下壁设有用于排水的第二螺纹孔,所述的第一螺纹孔和第二螺纹孔均配有相应的密封螺栓;所述的密封筒的入水孔上方焊有用以连接输水管的螺纹凸台。

4.如权利要求2所述的基于仿生的水下射流表面减阻测试装置,其特征在于:所述的磁流体密封组件包括圆环形永久磁铁、两块与永久磁铁相配合的相同的极靴,每块极靴内壁或外壁上有齿槽;两块极靴、形成相对运动的旋转件以及极靴与旋转件之间的间隙构成磁性回路,形成密封在旋转件上的磁性密封件。

5.如权利要求1所述的基于仿生的水下射流表面减阻测试装置,其特征在于:所述的输出轴的外部套接左连接筒,左连接筒的一端通过螺栓与所述的密封筒左端盖固接,并且保持左连接筒和密封筒左端盖同轴;左连接筒的另一端装有左连接筒端盖,所述的左连接筒与所述的输出轴之间配有一套所述的磁流体密封组件,其中左连接筒的内孔与磁流体密封组件的两块极靴过渡配合,两块极靴、输出轴以及极靴与输出轴之间的间隙形成磁性回路,形成密封在输出轴上的磁性密封件。

6.如权利要求5所述的基于仿生的水下射流表面减阻测试装置,其特征在于:所述的左连接筒与所述的密封筒左端盖之间夹有调整垫片,并且所述的密封筒左端盖的安装孔内嵌有防水轴承,所述的左连接筒端盖处配有深沟球轴承,所述的输出轴的两端装在相应的深沟球轴承和所述的防水轴承上。

7.如权利要求1所述的基于仿生的水下射流表面减阻测试装置,其特征在于:所述的输入轴的外部套接右连接筒,其中右连接筒的一端与所述的密封筒右端盖固接,另一端装有相应的轴承透盖;所述的右连接筒与所述的密封筒右端盖之间夹有用于密封的毡圈端盖;所述的密封筒右端盖的安装孔处嵌有防水轴承,所述的右连接筒与所述的输入轴之间的间隙配有深沟球轴承,所述的输入轴的两端装在相应的防水轴承和深沟球轴承上;所述的输入轴的输入端配有用于密封的毡圈,毡圈与输入轴为过盈配合。

8.如权利要求7所述的基于仿生的水下射流表面减阻测试装置,其特征在于:所述的密封筒右端盖的内表面设有轴向圆台,所述的外筒右端盖和所述的密封筒右端盖的圆台之间配有另一套磁流体密封组件,其中外筒右端盖的内孔与相应的磁流体密封组件的两块极靴过渡配合,两块极靴、圆台以及极靴和圆台之间的间隙形成磁性回路,形成密封在圆台上的磁性密封件。

9.如权利要求1所述的基于仿生的水下射流表面减阻测试装置,其特征在于:所述的第一联轴器为弹性注销联轴器,所述的第二联轴器为梅花型联轴器。

10.如权利要求1所述的基于仿生的水下射流表面减阻测试装置,其特征在于:所述的V型导轨的末端配有限位挡块。