欢迎来到知嘟嘟! 联系电话:13336804447 卖家免费入驻,海量在线求购! 卖家免费入驻,海量在线求购!
知嘟嘟
我要发布
联系电话:13336804447
知嘟嘟经纪人
收藏
专利号: 2023210066194
申请人: 辽宁广隆建设工程有限公司
专利类型:实用新型
专利状态:已下证
专利领域: 道路、铁路或桥梁的建筑
更新日期:2025-10-13
缴费截止日期: 暂无
价格&联系人
年费信息
委托购买

摘要:

权利要求书:

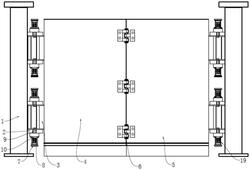
1.市政工程用隔音墙,其特征在于:包括支撑柱(1)、第一墙板(4)和第二墙板(5),所述第一墙板(4)和第二墙板(5)外部的一侧通过螺栓连接有合页(6),所述第一墙板(4)、第二墙板(5)和合页(6)之间构成折叠结构,所述第一墙板(4)和第二墙板(5)的两侧固定有安装件(3),所述支撑柱(1)外部一侧的顶部和底部设置有支撑块(2),所述支撑块(2)卡在安装件(3)的两侧,所述支撑柱(1)设置有两组,所述第一墙板(4)和第二墙板(5)的一侧通过螺栓固定有隔音棉(11),所述隔音棉(11)的一侧设置有吸音棉(12)。

2.根据权利要求1所述的市政工程用隔音墙,其特征在于:所述支撑块(2)上通过螺栓固定有限位套(19),所述限位套(19)内部滑动设置有插销(9),所述插销(9)上固定有限位件(10),所述插销(9)的一端穿过限位套(19)并连接有拉手(7)。

3.根据权利要求2所述的市政工程用隔音墙,其特征在于:所述限位套(19)的内部设置有复位弹簧(8),所述复位弹簧(8)的一端连接有限位件(10),所述复位弹簧(8)的另一端与限位套(19)内部的一侧相互连接。

4.根据权利要求2所述的市政工程用隔音墙,其特征在于:所述插销(9)穿过支撑块(2)上的孔并插入到安装件(3)中,所述支撑块(2)在支撑柱(1)上设置有两组,所述支撑块(2)、安装件(3)、复位弹簧(8)和插销(9)构成限位结构。

5.根据权利要求1所述的市政工程用隔音墙,其特征在于:所述第一墙板(4)和第二墙板(5)顶部的一侧设置有第一夹环(15),所述第一夹环(15)的一端连接有连接螺栓(17)。

6.根据权利要求5所述的市政工程用隔音墙,其特征在于:所述第一夹环(15)的一侧设置有第二夹环(16),所述第一夹环(15)和第二夹环(16)之间旋有固定螺栓(18),所述第一夹环(15)和第二夹环(16)之间夹持有喷淋管(13),所述喷淋管(13)的一侧连接有喷雾头(14),所述喷雾头(14)在喷淋管(13)上设置有多组。