欢迎来到知嘟嘟! 联系电话:13336804447 卖家免费入驻,海量在线求购! 卖家免费入驻,海量在线求购!
知嘟嘟
我要发布
联系电话:13336804447
知嘟嘟经纪人
收藏
专利号: 2023105085306
申请人: 环西汀新材料(江苏)有限公司
专利类型:发明专利
专利状态:已下证
专利领域: 制冷或冷却;加热和制冷的联合系统;热泵系统;冰的制造或储存;气体的液化或固化
更新日期:2024-02-23
缴费截止日期: 暂无
价格&联系人
年费信息
委托购买

摘要:

权利要求书:

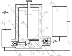
1.一种石油气体液化分离处理系统,包括压缩机和冷凝设备(7),所述压缩机连接冷凝设备(7),用于将石油气体压缩升温后输入到冷凝设备(7)中冷凝液化,其特征在于:所述压缩机和冷凝设备(7)各只设置一台,所述压缩机的上部与石油气体存储罐连接,下部一侧连接有缓存罐(6),另一侧连接有所述冷凝设备(7),所述冷凝设备(7)的出气口与所述缓存罐(6)的进气口连接;

所述压缩机包括气缸(1)和安装在气缸(1)内的能竖直滑动的活塞(2),所述气缸(1)内底部具有一个凹槽,所述活塞(2)的底端面具有与所述凹槽动密封插接配合的插接部(3),插接部(3)底端面为大端朝下的圆锥面,所述圆锥面的锥尖处连接有贯穿活塞(2)侧壁的排气通道(5);在所述气缸(1)与缓存罐(6)和冷凝设备(7)对接的两个接孔(8)内,通过弹簧对应连接有第一封堵塞和第二封堵塞,并且,在所述活塞(2)下移而压缩石油气体的过程中,第一堵塞(12)始终封堵其所在的接口,第二堵塞(11)则在活塞(2)压缩石油气体至设定温度以上时才被打开;

在所述气缸(1)靠所述第二堵塞(11)一侧的内壁上,径向弹性滑动地安装有驱动条(17),驱动条(17)底端与所述第二堵塞(11)固接;

所述驱动条(17)与动密封贯穿气缸(1)侧壁的从动杆固接,所述从动杆伸出气缸(1)外的部分包括第一竖直段(1401)和第二竖直段(1403),两竖直段通过一个呈S型的波浪段(1402)连接;

所述活塞(2)的驱动柱(10)的顶端连接有主动架(13),所述主动架(13)底端相对间隔地安装有两个钢球,第一钢球(15)用于与第一竖直段(1401)接触配合,第二钢球(16)用于与第二竖直段(1403)接触配合,所述活塞(2)在下移到石油气体升温至设定值之前的行程内,仅有第一钢球(15)与第一竖直段(1401)光滑接触,此时所述驱动条(17)位于能使第二堵塞(11)封堵其接孔(8)的位置;当活塞(2)继续下移到石油气体升温至设定值后的行程内,仅有第二钢球(16)与第二竖直段(1403)光滑接触,并因此而推动第二堵塞(11)打开其所在的接孔(8)。

2.如权利要求1所述的石油气体液化分离处理系统,其特征在于:所述气缸(1)的内腔为圆柱形,所述活塞(2)以及插接部(3)均为圆柱形。

3.如权利要求1所述的石油气体液化分离处理系统,其特征在于:所述气缸(1)靠其顶端处连接有进气管道(9),进气管道(9)与气缸(1)的接口位于活塞(2)上移至极限的位置以下。

4.如权利要求3所述的石油气体液化分离处理系统,其特征在于:在所述进气管道(9)上还安装有流量计和电磁阀,所述流量计检测到设定流量流过时,电磁阀关闭。

5.如权利要求1所述的石油气体液化分离处理系统,其特征在于:所述第一堵塞(12)和第二堵塞(11)均通过圆锥弹簧弹性连接,两个堵塞均具有与所述接孔(8)内壁配合的圆锥面,非工作状态下,第一堵塞(12)的圆锥弹簧始终对第一堵塞(12)具有拉力而封堵接孔(8),第二堵塞(11)的圆锥弹簧始终对第二堵塞(11)具有顶推力而封堵接孔(8)。

6.如权利要求5所述的石油气体液化分离处理系统,其特征在于:所述第一堵塞(12)和第二堵塞(11)均通过一根导杆水平滑动安装在各自所处的接孔(8)内。

7.一种石油气体液化分离处理工艺,其特征在于:采用如权利要求1‑6任一项所述的石油气体液化分离处理系统进行处理:

S1、将石油气体注入到气缸(1)内,启动活塞(2)下移,压缩石油气体,升温至设定温度后排入到所述冷凝设备(7)内,此时的冷凝设备(7)内的温度已经事先保持在第一气体组分的液化点上,第一气体组分的液化点为所有气体组分中液化点最高,冷却液化后得到第一烃液;

S2、冷凝设备(7)出来的其余组分气体进入到所述缓存罐(6)内,并随着活塞(2)的上移复位而进入到气缸(1)内,气缸(1)内重复步骤S1的相应动作,再次压缩升温石油气体后输入到冷凝设备(7)内,此时的冷凝设备(7)内的温度已经降温调至第二气体组分的液化点上,第二气体组分的液化点为所有气体组分中液化点次高,冷却液化后得到第二烃液;

S3、重复压缩、冷凝其余气体组分,冷凝的顺序依旧按气体组分的液化点从高到低进行,将石油气体所需液化分离的几种气体组分液化分离完毕。

8.如权利要求7所述的一种石油气体液化分离处理工艺,其特征在于:所述缓存罐(6)还连接有存储所述石油气中液化点最低的那个气体组分的存放罐,当石油气从冷凝设备(7)出来进入到缓存罐(6)时,存放罐内的气体组分补入到缓存罐(6)内,以使得缓存罐(6)内的气体组分被吸入气缸(1)的量能够与石油气初次进入气缸(1)内的量等同。

9.如权利要求8所述的一种石油气体液化分离处理工艺,其特征在于:在所述缓存罐(6)与气缸(1)之间,缓存罐(6)与存放罐之间,均设有电磁阀和流量计。