欢迎来到知嘟嘟! 联系电话:13336804447 卖家免费入驻,海量在线求购! 卖家免费入驻,海量在线求购!
知嘟嘟
我要发布
联系电话:13336804447
知嘟嘟经纪人
收藏
专利号: 2020224208905
申请人: 深圳市鑫华五金制品科技有限公司
专利类型:实用新型
专利状态:已下证
专利领域: 机床;其他类目中不包括的金属加工
更新日期:2025-04-18
缴费截止日期: 暂无
价格&联系人
年费信息
委托购买

摘要:

权利要求书:

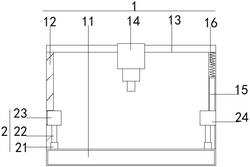
1.一种可进行稳定限位的不锈钢板材加工用激光切割装置,包括激光切割框体(1),其特征在于:所述激光切割框体(1)的两端均贯穿连接有放置结构(2),所述放置结构(2)的顶部固定连接有限位结构(3),所述限位结构(3)顶部的两端均活动连接有稳定结构(4)。

2.根据权利要求1所述的可进行稳定限位的不锈钢板材加工用激光切割装置,其特征在于:所述激光切割框体(1)包括有底座框(11)、侧挡板(12)、承载柱(13)、激光切割装置(14)、进入口(15)和连接弹簧(16),所述底座框(11)的顶部均固定设置有侧挡板(12),同时侧挡板(12)的顶部均固定设置有承载柱(13),其承载柱(13)上安装有激光切割装置(14)。

3.根据权利要求2所述的可进行稳定限位的不锈钢板材加工用激光切割装置,其特征在于:所述底座框(11)顶部的左右端均固定设置有侧挡板(12),其位于右端的侧挡板(12)开设有进入口(15),并且进入口(15)的顶部密封设置后固定设置有连接弹簧(16)。

4.根据权利要求1所述的可进行稳定限位的不锈钢板材加工用激光切割装置,其特征在于:所述放置结构(2)包括有套柱(21)、贯穿柱(22)、左放置块(23)和右放置块(24),所述套柱(21)分别位于底座框(11)顶部的两端固定设置,同时套柱(21)内部均套接设置有贯穿柱(22),其位于左端的贯穿柱(22)顶部固定设置有左放置块(23),且位于右端的贯穿柱(22)顶部固定设置有右放置块(24)。

5.根据权利要求4所述的可进行稳定限位的不锈钢板材加工用激光切割装置,其特征在于:所述套柱(21)的内壁均设置有螺纹,同时贯穿柱(22)的外壁设置有与其套柱(21)内壁相对应的螺纹,其贯穿柱(22)下端对应的底座框(11)位置处均为空心设置,且底座框(11)内与其贯穿柱(22)对应的位置处也可设置有液压装置与其贯穿连接。

6.根据权利要求1所述的可进行稳定限位的不锈钢板材加工用激光切割装置,其特征在于:所述限位结构(3)包括有下承载板(31)、上承载板(32)、转动柱(33)、一号齿轮(34)、二号齿轮(35)和抵紧块(36),所述下承载板(31)位于左放置块(23)的顶部,同时下承载板(31)的两端均设置有转动柱(33),其转动柱(33)的顶部设置有上承载板(32),且转动柱(33)的两端均设置有一号齿轮(34),并且上承载板(32)的中部贯穿设置有抵紧块(36)。

7.根据权利要求6所述的可进行稳定限位的不锈钢板材加工用激光切割装置,其特征在于:所述上承载板(32)内部的顶壁均匀固定设置有二号齿轮(35),同时下承载板(31)内部的底壁均匀固定设置有二号齿轮(35),其上承载板内部的二号齿轮(35)与其转动柱(33)顶部的一号齿轮(34)相互啮合,且下承载板(31)内部的二号齿轮(35)与其转动柱(33)底部的一号齿轮(34)相互啮合,并且抵紧块(36)顶部的中端设置有滑槽。

8.根据权利要求1所述的可进行稳定限位的不锈钢板材加工用激光切割装置,其特征在于:所述稳定结构(4)包括有固定环(41)、调节珠(42)、一号抵紧杆(43)、二号抵紧杆(44)、复位弹簧(45)、压力块(46)、连接杆(47)和凸块(48),所述固定环(41)分别位于抵紧块(36)两端的上承载板(32)上,同时固定环(41)的内部均活动设置有调节珠(42),其调节珠(42)的顶部均设置有一号抵紧杆(43),且一号抵紧杆(43)的顶部均设置有二号抵紧杆(44),并且二号抵紧杆(44)的另一端均设置有压力块(46)。

9.根据权利要求8所述的可进行稳定限位的不锈钢板材加工用激光切割装置,其特征在于:所述压力块(46)的另一端均是位于抵紧块(36)顶部中端的滑槽内设置。

10.根据权利要求8所述的可进行稳定限位的不锈钢板材加工用激光切割装置,其特征在于:所述一号抵紧杆(43)和二号抵紧杆(44)之间均固定设置有复位弹簧(45),其调节珠(42)的内部任意一端固定设置有连接杆(47),同时固定环(41)内部固定设置有凸块(48)均是位于连接杆(47)的下端与其连接杆(47)对应。