欢迎来到知嘟嘟! 联系电话:13336804447 卖家免费入驻,海量在线求购! 卖家免费入驻,海量在线求购!
知嘟嘟
我要发布
联系电话:13336804447
知嘟嘟经纪人
收藏
专利号: 2020214002198
申请人: 贾冬梅
专利类型:实用新型
专利状态:已下证
专利领域: 建筑物
更新日期:2023-11-13
缴费截止日期: 暂无
价格&联系人
年费信息
委托购买

摘要:

权利要求书:

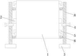
1.一种建筑施工用隔离护栏,包括防护栏(1)和支撑腿(8),其特征在于:所述支撑腿(8)的底部固定安装有底座(3),且底座(3)的内腔开设有安装孔,所述防护栏(1)左右两侧的上下两端均固定安装有卡销(5),所述支撑腿(8)靠近防护栏(1)的一侧固定安装有与卡销(5)配合使用的卡块(6),所述防护栏(1)的左右两侧均固定安装有螺块(2),所述支撑腿(8)的内腔设置有螺栓(4),所述防护栏(1)的表面设置有防护层(7),所述防护栏(1)包含有第一吸音层(101)、第二吸音层(102)和强度层(103),所述防护层(7)包含有防腐蚀层(701)和防水层(702)。

2.根据权利要求1所述的一种建筑施工用隔离护栏,其特征在于:所述第一吸音层(101)为矿渣棉层,所述第二吸音层(102)为玻璃棉层,所述强度层(103)为聚砜工程塑料板层。

3.根据权利要求1所述的一种建筑施工用隔离护栏,其特征在于:所述防腐蚀层(701)为聚酰胺涂层,所述防水层(702)为聚乙烯防水复合膜层。

4.根据权利要求1所述的一种建筑施工用隔离护栏,其特征在于:所述第一吸音层(101)位于第二吸音层(102)的表面,所述第二吸音层(102)位于强度层(103)的表面。

5.根据权利要求1所述的一种建筑施工用隔离护栏,其特征在于:所述防腐蚀层(701)位于防水层(702)的表面,所述防水层(702)位于第一吸音层(101)的表面。