欢迎来到知嘟嘟! 联系电话:13336804447 卖家免费入驻,海量在线求购! 卖家免费入驻,海量在线求购!
知嘟嘟
我要发布
联系电话:13336804447
知嘟嘟经纪人
收藏
专利号: 2019216998533
申请人: 宁波大学
专利类型:实用新型
专利状态:已下证
专利领域: 锁;钥匙;门窗零件;保险箱
更新日期:2023-08-24
缴费截止日期: 暂无
价格&联系人
年费信息
委托购买

摘要:

权利要求书:

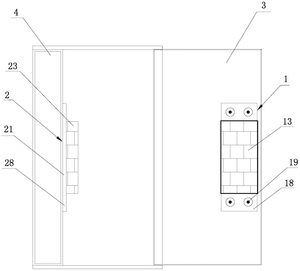
1.一种简易闭门装置,其特征在于包括安装于门扇侧的第一磁性组件和安装于门框侧的第二磁性组件,所述的第一磁性组件由中空的第一保护外壳、嵌设于所述的第一保护外壳的空腔内的第一磁块、设置于所述的第一保护外壳的正表面上的第一缓冲垫组成,所述的第一保护外壳的背部与门扇的内侧面固定连接,所述的第二磁性组件由中空的第二保护外壳、嵌设于所述的第二保护外壳的空腔内的第二磁块、设置于所述的第二保护外壳的一个侧面上的第二缓冲垫组成,所述的第二保护外壳的背部与门框朝向门轴的侧面固定连接后所述的第二缓冲垫朝向门扇向门框合拢一侧,门扇绕门轴向门框合拢时所述的第一缓冲垫与所述的第二缓冲垫接触,在所述的第一磁块和所述的第二磁块相互吸引作用下实现闭门功能。

2.根据权利要求1所述的一种简易闭门装置,其特征在于所述的第一保护外壳的背部的上端和下端各竖直延伸设置有第一连接部,所述的第一连接部上开设有第一螺丝孔,通过螺钉穿过所述的第一螺丝孔实现所述的第一磁性组件的安装;所述的第二保护外壳的背部的上端和下端各竖直延伸设置有第二连接部,所述的第二连接部上开设有第二螺丝孔,通过螺钉穿过所述的第二螺丝孔实现所述的第二磁性组件的安装。

3.根据权利要求1或2所述的一种简易闭门装置,其特征在于所述的第一磁块和所述的第二磁块均为强力永久性磁铁。

4.一种简易闭门装置,其特征在于包括安装于门扇侧的第一磁性组件和安装于门框侧的第二磁性组件,所述的第一磁性组件由中空的第一保护外壳、嵌设于所述的第一保护外壳的空腔内的第一磁块、设置于所述的第一保护外壳的正表面上的第一缓冲垫组成,所述的第一保护外壳的背部与门扇的内侧面固定连接,所述的第二磁性组件由第二保护外壳、活动磁性构件、设置于所述的第二保护外壳的一个侧面上的第二缓冲垫组成,所述的第二保护外壳内开设有一个圆形腔,所述的圆形腔的轴线方向与所述的第二保护外壳的前后方向一致,所述的活动磁性构件设置于所述的圆形腔内且与所述的第二保护外壳连接,所述的活动磁性构件包括磁块体,在自然状态重力作用下所述的磁块体竖直位于所述的圆形腔内,所述的第二保护外壳的背部与门框朝向门轴的侧面固定连接后所述的第二缓冲垫朝向门扇向门框合拢一侧,门扇绕门轴向门框合拢时所述的第一缓冲垫与所述的第二缓冲垫接触,且所述的磁块体在所述的圆形腔内翻转180度后与所述的第一磁块异极相吸实现闭门功能。

5.根据权利要求4所述的一种简易闭门装置,其特征在于所述的磁块体包括中空的条状的第三保护外壳和嵌设于所述的第三保护外壳的空腔内的第二磁块,所述的第三保护外壳的长度小于所述的圆形腔的直径。

6.根据权利要求5所述的一种简易闭门装置,其特征在于所述的活动磁性构件还包括固定轴和扭簧,所述的固定轴贯穿所述的磁块体且与所述的磁块体活动连接,所述的固定轴的轴线与所述的圆形腔的轴线重合,所述的固定轴的两轴端分别与所述的第二保护外壳固定连接,在自然状态重力作用下所述的磁块体以所述的固定轴为中心分为上短下长两部分,所述的扭簧套设于所述的固定轴外,所述的扭簧位于所述的磁块体的后方,所述的扭簧的一端与所述的固定轴连接,所述的扭簧的另一端与所述的第三保护外壳的背部的上部分连接。

7.根据权利要求6所述的一种简易闭门装置,其特征在于所述的磁块体以所述的固定轴为中心的下部分较上部分长10%到40%。

8.根据权利要求4至7中任一项所述的一种简易闭门装置,其特征在于所述的第一保护外壳的背部的上端和下端各竖直延伸设置有第一连接部,所述的第一连接部上开设有第一螺丝孔,通过螺钉穿过所述的第一螺丝孔实现所述的第一磁性组件的安装;所述的第二保护外壳的背部的上端和下端各竖直延伸设置有第二连接部,所述的第二连接部上开设有第二螺丝孔,通过螺钉穿过所述的第二螺丝孔实现所述的第二磁性组件的安装。

9.根据权利要求5或6所述的一种简易闭门装置,其特征在于所述的第一磁块和所述的第二磁块均为强力永久性磁铁。

10.根据权利要求5所述的一种简易闭门装置,其特征在于所述的第三保护外壳的各个角圆弧过渡。