欢迎来到知嘟嘟! 联系电话:13336804447 卖家免费入驻,海量在线求购! 卖家免费入驻,海量在线求购!
知嘟嘟
我要发布
联系电话:13336804447
知嘟嘟经纪人
收藏
专利号: 201911184154X
申请人: 杭州电子科技大学
专利类型:发明专利
专利状态:已下证
专利领域: 测量;测试
更新日期:2024-01-05
缴费截止日期: 暂无
价格&联系人
年费信息
委托购买

摘要:

权利要求书:

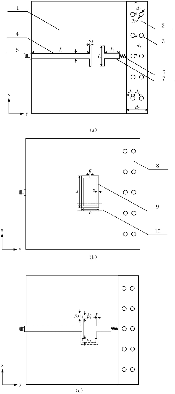
1.基于T型馈线激励互补开环谐振器的微波微流体传感器,该传感器为单端口器件,其特征在于包括微带线结构、金属薄片Ⅰ、介质层、金属薄片Ⅱ、刻槽金属CSRR结构;

所述金属薄片Ⅰ铺设在介质层上表面的其中一侧局部区域,剩余为空白区域;

所述微带线结构设置在介质层上表面的空白区域,包括位于介质层边缘的一个输入输出端口,所述输入输出端口用于连接SMA连接头,所述SMA连接头与矢量网络分析仪相连通;

所述输入输出端口与微带线结构连接,所述微带线结构包括T型微带线Ⅰ和T型微带线Ⅱ,其中T型微带线Ⅰ由相互垂直的第一微带线与第二微带线构成,为一体成型结构;T型微带线Ⅱ由相互垂直的第三微带线与第四微带线构成,为一体成型结构;第一微带线的一端通过50欧姆电阻焊接至金属薄片Ⅰ,另一端与第二微带线的中点连接;第三微带线的一端作为输入输出端口,另一端与第四微带线的中点连接;第二微带线与第四微带线平行设置,且两者间留有空隙;第一微带线、第三微带线位于同一直线;

所述金属薄片Ⅱ与介质层形状相同,铺设在介质层的下表面,且刻蚀有一个刻槽金属CSRR结构;刻槽金属CSRR结构与微带线Ⅰ和微带线Ⅱ之间耦合;

所述刻槽金属CSRR为槽环结构,槽环设有一个开口,其中与槽环开口相对的两个直角之间相接的槽沟区域电场强度最大,该区域放置微流控芯片,用于测量电解质溶液的复介电常数;

金属薄片Ⅰ开有若干周期排布的通孔,该通孔贯通金属薄片Ⅰ、介质层、金属薄片Ⅱ,通孔周壁被金属化,使所述金属薄片Ⅰ与底层的金属薄片Ⅱ连通。

2.如权利要求1所述的基于T型馈线激励互补开环谐振器的微波微流体传感器,其特征在于所述T型微带线Ⅰ与T型微带线Ⅱ的T型头部长度均为16mm,且相互对齐;两个T型头部相距7mm,并与底层的刻槽金属CSRR结构相耦合。

3.如权利要求1或2所述的基于T型馈线激励互补开环谐振器的微波微流体传感器,其特征在于所述T型微带线Ⅰ的第三微带线长度为1/4波长的整数倍。

4.如权利要求3所述的基于T型馈线激励互补开环谐振器的微波微流体传感器,其特征在于所述T型微带线Ⅰ的第三微带线长度为26.5mm,且宽度设置为2.73mm。

5.如权利要求1-4任一所述的基于T型馈线激励互补开环谐振器的微波微流体传感器,其特征在于所述T型微带线Ⅱ和50欧姆电阻的总长度为12mm,T型微带线Ⅱ宽度设置为

2.73mm。

6.如权利要求1-5任一所述的基于T型馈线激励互补开环谐振器的微波微流体传感器,其特征在于微流通道位于槽沟的上方。

7.如权利要求1-6任一所述的基于T型馈线激励互补开环谐振器的微波微流体传感器,其特征在于所述微流控芯片由聚二甲基硅氧烷(PDMS)加工制作而成,该芯片为方形芯片,芯片内有微流通道,用于存放电解质溶液。

8.如权利要求1-7任一所述的基于T型馈线激励互补开环谐振器的微波微流体传感器,其特征在于所述刻槽金属CSRR结构的中心、第二微带线与第四微带线之间空隙的中心在平面位置上一致。

9.如权利要求1-8任一所述的基于T型馈线激励互补开环谐振器的微波微流体传感器,其特征在于第二微带线的两端与该刻槽金属CSRR结构x轴向外边沿距离p3为1.5mm;第二微带线与该刻槽金属CSRR结构y轴向外边沿最近距离p2为0.5mm。

10.如权利要求1-9任一所述的基于T型馈线激励互补开环谐振器的微波微流体传感器,其特征在于所述刻槽金属CSRR结构槽环尺寸设置为19mm×10mm,槽宽为1mm,槽环开口的宽度为0.5mm,其合理的尺寸使得电场很好的束缚在槽环周边。