欢迎来到知嘟嘟! 联系电话:13336804447 卖家免费入驻,海量在线求购! 卖家免费入驻,海量在线求购!
知嘟嘟
我要发布
联系电话:13336804447
知嘟嘟经纪人
收藏
专利号: 2019108167547
申请人: 西安理工大学
专利类型:发明专利
专利状态:已下证
专利领域: 建筑物
更新日期:2024-01-05
缴费截止日期: 暂无
价格&联系人
年费信息
委托购买

摘要:

权利要求书:

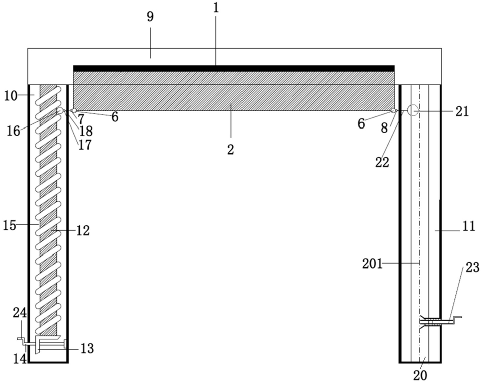
1.可作为避难所的园林组合结构,包括立柱和中空顶(9),中空顶(9)设置于立柱上,其特征在于:

中空顶(9)内设置有卷筒(1),卷筒(1)上缠绕有侧部围护件(2),卷筒(1)和卷筒的旋转轴之间设置有卷簧;

立柱为中空结构,立柱包括两根主动立柱(10)和两根从动立柱(11);两根主动立柱(10)和两根从动立柱(11)分别设置在水平面呈矩形的四个角点处,其中两根主动立柱(10)位于矩形一条边的同侧两个角点,两根从动立柱(11)位于对边同侧的两个角点;主动立柱(10)和从动立柱(11)之间具有侧部围护件(2);

主动立柱(10)内设置有手动驱动装置,所述手动驱动装置能驱动侧部围护件(2)向下展开或向上回缩。

2.根据权利要求1所述的可作为避难所的园林组合结构,其特征在于:

侧部围护件(2)的下部设置有支撑轴(6),支撑轴(6)的两端分别固定有万向铰接件I(7)和固定件(8);

相邻的两根主动立柱(10)之间和相邻的两根从动立柱(11)之间分别设置有前部卷轴(3)和后部卷轴(4);前部卷轴(3)和后部卷轴(4)上都缠绕有挡风件(5);

所述手动驱动装置包括在主动立柱(10)内转动设置的螺旋驱动杆(12)、伞状齿轮组(13)、转轴II(14)和手摇杆(24);所述伞状齿轮组(13)是由旋转轴呈90°相互啮合的两旋转伞齿轮构成;螺旋驱动杆(12)的下端设置有伞状齿轮组(13),伞状齿轮组(13)上设置有转轴II(14);转轴II(14)伸出主动立柱(10),转轴II(14)上固定有手摇杆(24);螺旋驱动杆(12)上设置有螺旋凹槽(15);螺旋凹槽(15)内设置有主动滚球(16),主动滚球(16)上固定有万向铰接件II(17);万向铰接件I(7)和万向铰接件II(17)通过传动杆I(18)连接;主动立柱(10)上竖直设置有通长缝(19),传动杆I(18)穿过通长缝(19);

从动立柱(11)内设置有竖直轨道(20);竖直轨道(20)包括轨道部(201)和支持部(202);轨道部(201)内设置有从动滚球(21);从动滚球(21)与固定件(8)通过传动杆II(22)固定连接;从动立柱(11)和竖直轨道(20)下部设置有孔,孔内安装有从动滚球固定件(23);

从动滚球固定件(23)包括具有内螺纹的套筒部(231)和可与套筒部(231)螺接的转动部(232),转动部(232)具有外螺纹,转动部(232)螺接于套筒部(231)内,转动部(232)上固定有转动手柄(233),套筒部(231)的顶部设置有喇叭口形的导向面(234),转动部(232)的顶端设置有从动滚球(21)的限位件(235),限位件(235)与转动部(232)转动连接,限位件(235)与转动部(232)之间斜向设置具有预压力的卡簧(236),导向面(234)的外表面与轨道部(201)的底面平齐。

3.根据权利要求2所述的可作为避难所的园林组合结构,其特征在于:主动滚球(16)的半径长度为R,螺旋凹槽(15)的深度为H,R

4.根据权利要求3所述的可作为避难所的园林组合结构,其特征在于:转动部(232)的直径小于从动滚球(21)的直径。

5.根据权利要求2-4中任一权利要求所述的可作为避难所的园林组合结构,其特征在于:

其具有两种使用状态:避难所状态和非避难所状态。

6.根据权利要求5所述的可作为避难所的园林组合结构,其特征在于:

当使用避难所状态时,手摇杆(24)顺时针转动,带动转轴II(14)转动,伞状齿轮组(13)运动,带动螺旋驱动杆(12)顺时针旋转,进而主动滚球(16)沿着螺旋凹槽(15)下移,随着主动滚球(16)的下移,与其连接的万向铰接件II(17)、传动杆I(18)和万向铰接件I(7)带动主动立柱(10)侧的支撑轴(6)下移,从动立柱(11)侧的支撑轴(6)也下移,通过固定件(8)和传动杆II(22)带动从动滚球(21)沿着竖直轨道(20)下移;

当侧部围护件(2)展开到需求位置时,停止转动手摇杆(24),然后旋转转动手柄(233),转动部(232)的外螺纹与套筒部(231)的内螺纹啮合,随着转动部(232)的转动,转动部(232)向外移动,在被压卡簧(236)的联合作用下枢转其上的限位件(235)沿着导向面(234)扭出,限位件(235)将从动滚球(21)卡住,完成侧部围护件(2)的安装。

7.根据权利要求6所述的可作为避难所的园林组合结构,其特征在于:

完成侧部围护件(2)的安装后,分别从前部卷轴(3)和后部卷轴(4)上将挡风件(5)拉下,将挡风件(5)下部的挂钩穿过地面挂环使其固定。

8.根据权利要求7所述的可作为避难所的园林组合结构,其特征在于:

当使用非避难所状态时,将挡风件(5)下部的挂钩从地面挂环上分离,挡风件(5)回卷到前部卷轴(3)和后部卷轴(4)上,然后旋转转动手柄(233),转动部(232)的外螺纹与套筒部(231)的内螺纹啮合,随着转动部(232)的转动,转动部(232)向内移动,其上的限位件(235)沿着导向面(234)扭进套筒部(231)内,压簧(236)被压缩,从动滚球(21)从限位件(235)中滚回至竖直轨道(20)内,手摇杆(24)逆时针转动,进而带动转轴II(14)转动,伞状齿轮组(13)运动,带动螺旋驱动杆(12)逆时针旋转,进而主动滚球(16)沿着螺旋凹槽(15)上移,同时侧部围护件(2)在卷筒(1)和卷筒的旋转轴之间设置的卷簧的作用下回缩缠回卷筒上,随着主动滚球(16)的上移,与其连接的万向铰接件II(17)、传动杆I(18)和万向铰接件I(7)带动主动立柱(10)侧的支撑轴(6)上移,从动立柱(11)侧的支撑轴(6)也上移,通过固定件(8)和传动杆II(22)带动从动滚球(21)沿着竖直轨道(20)上移,当侧部围护件(2)回缩到需求位置时,停止转动手摇杆(24)。