欢迎来到知嘟嘟! 联系电话:13336804447 卖家免费入驻,海量在线求购! 卖家免费入驻,海量在线求购!
知嘟嘟
我要发布
联系电话:13336804447
知嘟嘟经纪人
收藏
专利号: 2019100949601
申请人: 武汉易知鸟科技有限公司
专利类型:发明专利
专利状态:已下证
专利领域: 供热;炉灶;通风
更新日期:2025-12-17
缴费截止日期: 暂无
价格&联系人
年费信息
委托购买

摘要:

权利要求书:

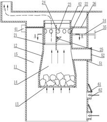
1.环保型采暖炉,包括炉体,所述炉体内安装有炉胆,所述炉胆的顶端开口且底端安装有落灰栅,其特征在于:所述炉胆内设置有直烧室,所述炉胆与所述炉体之前设置有反烧室,所述炉胆的顶端安装有直反烧调节装置,位于所述直反烧调节装置上方的所述炉胆出火口处安装有臭氧电离产生装置,所述臭氧电离产生装置电连接有位于所述炉体外壁上的脉冲发生器;所述炉体上设置有与所述直烧室直接连通的填料反烧进气装置,所述炉体上还设置有与所述反烧室直接连通的直烧进气装置;

所述臭氧电离产生装置包括底端口伸入到所述炉胆内的绝燃筒体,所述绝燃筒体内交错排列安装有电离阴极和电离阳极,所述电离阴极和所述电离阳极分别通过阴极线缆和阳极线缆与所述脉冲发生器连接;所述电离阴极与所述电离阳极的延伸方向与所述绝燃筒体的轴向垂直;

所述直反烧调节装置包括周向设置在所述炉胆上的多个混合气外孔,所述炉胆内设置有位于所述混合气外孔下方的环台,所述环台上方的所述炉胆内转动安装有混合调节筒,所述混合调节筒上设置有与所述混合气外孔一一对应的混合气内孔;所述混合调节筒连接有旋转驱动装置;所述混合气内孔下方的所述混合调节筒内转动安装有直反烧调节板,所述混合调节筒的内壁上设置有位于所述直反烧调节板下方的限位块,所述限位块设置有与所述直反烧调节板配合的水平限位端面和竖直限位端面,所述炉胆的顶端与所述炉体之间安装有反烧室上挡板;

所述旋转驱动装置包括设置在所述炉胆外壁上且周向延伸的弧形槽,所述混合调节筒上固定安装有从所述弧形槽内伸出的推拉柱,所述推拉柱上安装有推拉环,所述推拉环上铰接有自由端从所述炉体侧壁上伸出的推拉杆,所述推拉杆的自由端安装有推拉手柄。

2.如权利要求1所述的环保型采暖炉,其特征在于:所述电离阴极和所述电离阳极均为铜电极。

3.如权利要求1所述的环保型采暖炉,其特征在于:相邻所述电离阴极和所述电离阳极之间的距离为2~3cm。

4.如权利要求1所述的环保型采暖炉,其特征在于:所述填料反烧进气装置包括安装在所述炉胆上、穿过所述反烧室并从所述炉体的侧壁上伸出的反烧进气填料筒,所述反烧进气填料筒的开口端安装有反烧进气填料门。

5.如权利要求1所述的环保型采暖炉,其特征在于:所述直烧进气装置位于所述填料反烧进气装置的下方。

6.如权利要求1所述的环保型采暖炉,其特征在于:所述直烧进气装置包括安装在所述炉体侧壁上与所述反烧室连通的两个直烧进气筒,所述直烧进气筒的开口端安装有直烧进气门。

7.如权利要求6所述的环保型采暖炉,其特征在于:一个所述直烧进气筒位于所述炉体的底部且兼做出灰口。