欢迎来到知嘟嘟! 联系电话:13336804447 卖家免费入驻,海量在线求购! 卖家免费入驻,海量在线求购!
知嘟嘟
我要发布
联系电话:13336804447
知嘟嘟经纪人
收藏
专利号: 2014105023194
申请人: 浙江工业大学
专利类型:发明专利
专利状态:已下证
专利领域: 测量;测试
更新日期:2023-08-24
缴费截止日期: 暂无
价格&联系人
年费信息
委托购买

摘要:

权利要求书:

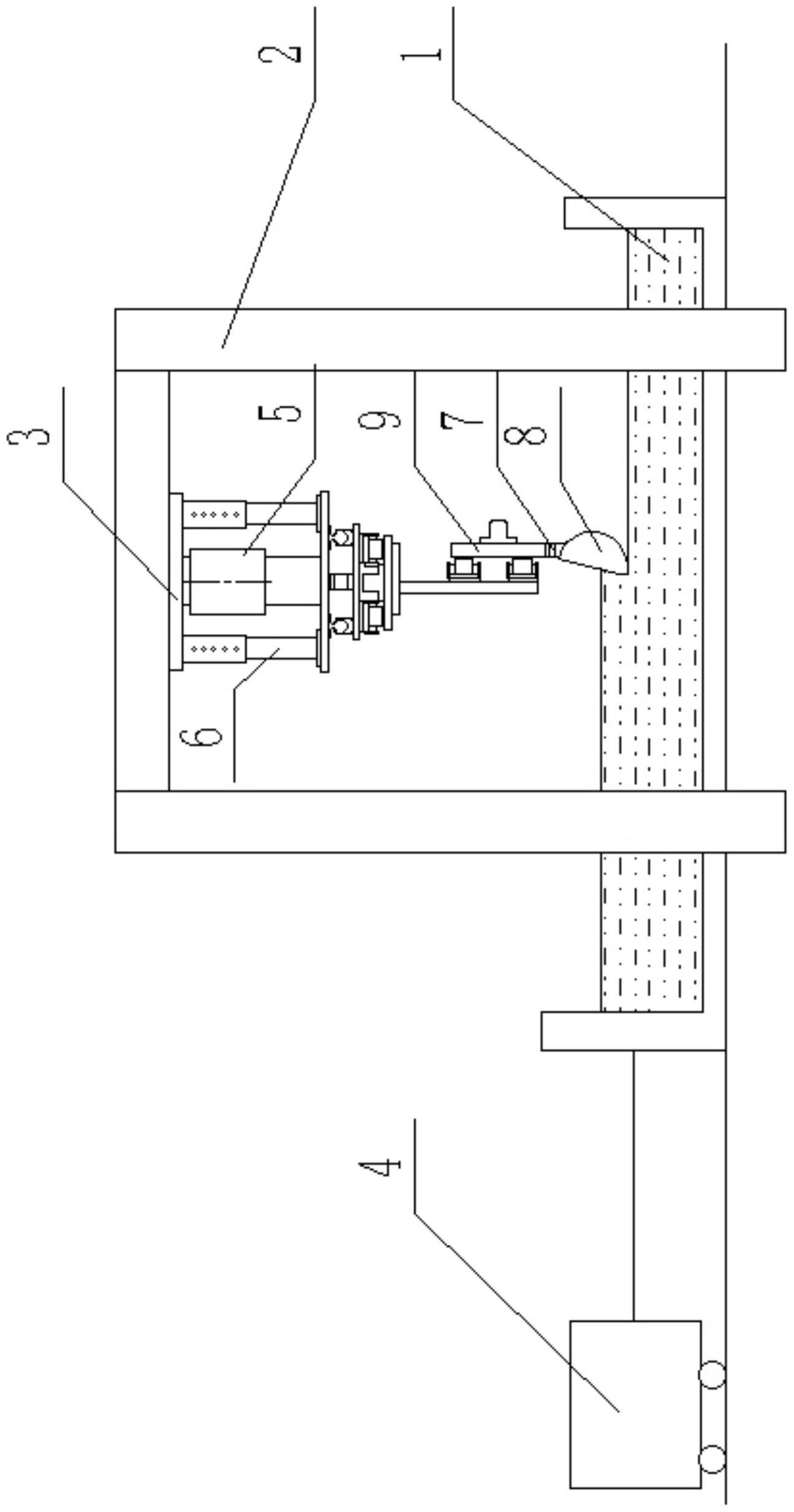
1.一种土槽试验台,包括固定平台、土槽、牵引机构,其特征在于:它还包括龙门架、气压缸、气压缸导向杆、第一气动振动系统、第二气动振动系统、第三气动振动系统、土壤工作部件安装板、六自由度传感器和土壤工作部件;所述土槽为可移动土槽,所述可移动土槽在牵引机构的牵引下水平移动,所述土槽设在龙门架的下方;所述固定平台固定在龙门架上;

所述气压缸的底部固接固定平台的底部,所述气压缸的活塞杆连接第一气动振动系统,所述第一气动振动系统连接第二气动振动系统,所述第二气动振动系统连接第三气动振动系统,所述第三气动振动系统连接土壤工作部件安装板;所述土壤工作部件安装板底部连接土壤工作部件;所述土壤工作部件安装板上设有六自由度传感器。

2.根据权利要求1所述的一种土槽试验台,其特征在于:所述第一气动振动系统包括第一气浮导轨安装平台、第二气浮导轨安装平台、第一气浮导轨、第一气动振动器;所述第一气浮导轨安装平台连接气压缸的活塞杆,所述第一气浮导轨安装平台和第二气浮导轨安装平台通过第一气浮导轨连接,所述第一气动振动器设在第二气浮导轨安装平台上;所述第二气动振动系统包括第三气浮导轨安装平台、第二气浮导轨、第二气动振动器;所述第二气浮导轨安装平台和第三气浮导轨安装平台通过第二气浮导轨连接,所述第二气动振动器设在第三气浮导轨安装平台上;所述第三气动振动系统包括第四气浮导轨安装平台、第三气浮导轨和第三气动振动器,所述第四气浮导轨安装平台竖直放置且顶端固接第三气浮导轨安装平台的底部,所述第四气浮导轨安装平台和土壤工作部件安装板通过第三气浮导轨连接,所述第三气动振动器装在土壤工作部件安装板上。

3.根据权利要求1所述的一种土槽试验台,其特征在于:所述固定平台底部和第一气浮导轨安装平台之间设有导向杆,所述导向杆上设有定位孔。

我要求购
我不想找了,帮我找吧
您有专利需要变现?
我要出售
智能匹配需求,快速出售