欢迎来到知嘟嘟! 联系电话:13336804447 卖家免费入驻,海量在线求购! 卖家免费入驻,海量在线求购!
知嘟嘟
我要发布
联系电话:13336804447
知嘟嘟经纪人
收藏
专利号: 2012100388338
申请人: 浙江大学台州研究院
专利类型:发明专利
专利状态:已下证
专利领域: 测量;测试
更新日期:2023-08-24
缴费截止日期: 暂无
价格&联系人
年费信息
委托购买

摘要:

权利要求书:

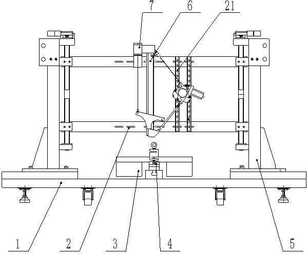
1.一种电动玻璃升降器性能与耐久性综合试验台,其特征在于,包括底架(1)、两组立架(5)、两根定位横梁(2),两组立架(5)活动设置于底架(1)的两边,两组立架(5)之间活动设置有上下两根定位横梁(2),两根定位横梁(2)之间活动设置有多根竖梁(21); 位于上方的定位横梁(2)上设置有位移测量组件(7),位移测量组件(7)能够沿定位横梁(2)滑动;

所述位移测量组件(7)包括位移传感器(71)、位移传感器滑动座(72)、锁定螺钉(73),位移传感器(71)固定设置于位移传感器滑动座(72)上,位移传感器滑动座(72)的底部设置有锁定螺钉(73);位移传感器滑动座(72)活动设置于所述上方的定位横梁(2)上,位移传感器滑动座(72)能够沿定位横梁(2)左右移动,并通过旋动锁定螺钉(73)将其固定在所述定位横梁(2)的指定位置;位移传感器(71)在性能试验时测量升降器行程、位移、位置信息;

底架(1)的顶部中央活动设置有力测量组件(4)和砝码组件(3)。

2.根据权利要求1所述的电动玻璃升降器性能与耐久性综合试验台,其特征在于,所述底架(1)包括底梁(11),底梁(11)的两侧分别连接横向T型槽板(13),底梁(11)的中央设置纵向T型槽板(12);所述立架(5)通过横向T型槽板(13)活动连接底架(1);所述力测量组件(4)和砝码组件(3)分别通过纵向T型槽板(12)连接底架(1)。

3.根据权利要求1所述的电动玻璃升降器性能与耐久性综合试验台,其特征在于,所述立架(5)包括立柱(52)、驱动电机(53)、丝杠(54)、横梁定位块(55),立柱(52)的底部活动设置于底架(1)的横向T型槽板(13)内;

立柱(52)的内侧活动设置有上下两个横梁定位块(55),立架(5)通过横梁定位块(55)活动连接定位横梁(2)的一端;横梁定位块(55)能够沿立柱(52)上下移动,带动定位横梁(2)沿立架(5)上下移动;

两个横梁定位块(55)分别通过旋向相反的螺纹连接丝杠(54),丝杠(54)的顶部设置驱动电机(53);当驱动电机(53)驱动丝杠(54)旋转时,丝杠(54)带动两个横梁定位块(55)分别沿立柱(52)上下反向运动,从而调节两根定位横梁(2)之间的间距。

4.根据权利要求1或3所述的电动玻璃升降器性能与耐久性综合试验台,其特征在于,所述砝码组件(3)包括滑动座(36)、砝码(32)、升降气缸(34)、导杆(33),滑动座(36)的顶部设置有升降气缸(34),升降气缸(34)的活塞杆顶住砝码(32)的底部,砝码(32)滑套在导杆(33)上;在升降气缸(34)的驱动下,砝码(32)能够沿导杆(33)上下滑动;砝码(32)的顶部固定设置有吊环螺钉(31);

滑动座(36)通过底部的滑键活动连接纵向T型槽板(12),实现砝码组件(3)与底架(1)的活动连接;滑动座(36)底部设置有滚轮(35);砝码组件(3)能够通过滚轮(35)沿纵向T形槽板(12)在底架(1)上前后移动。

5.根据权利要求4所述的电动玻璃升降器性能与耐久性综合试验台,其特征在于,在进行升降器自锁性测试试验中,将所述砝码组件(3)移动到被测升降器(6)的玻璃托架(61)正下方,启动升降气缸(34)将砝码(32)顶起,然后将钢丝绳(37)穿过吊环螺钉(31)的孔中,两端分别连接到玻璃托架(61)上,位移传感器(71)的拉绳连接到玻璃托架(61)上,通过位移传感器(71)测得玻璃托架(61)的位移;升降气缸(34)的活塞杆回退,砝码(32)通过钢丝绳(37)将自身重力传递到玻璃托架(61)上,位移传感器(71)测得玻璃托架(61)受到下拉力后的下降量,从而获得升降器的自锁性能。

6.根据权利要求1所述的电动玻璃升降器性能与耐久性综合试验台,其特征在于,所述力测量组件(4)包括力传感器(42)、力传感器固定座(43)、力传感器吊环螺钉(41),力传感器(42)的顶部连接力传感器吊环螺钉(41),力传感器(42)的底部与力传感器固定座(43)铰接;力传感器(42)测量升降器的关闭力; 力传感器固定座(43)的底部活动连接纵向T型槽板(12),力传感器固定座(43)能够沿纵向T型槽板(12)前后移动。

7.根据权利要求6所述的电动玻璃升降器性能与耐久性综合试验台,其特征在于,在进行升降器关闭力测量试验的时候,将所述力测量组件(4)移动到被测升降器(6)的玻璃托架(61)正下方,将钢丝绳(37)穿过力传感器吊环螺钉(41)的孔中,两端分别连接到升降器(6)的玻璃托架(61)上;启动被测升降器(6)使玻璃托架(61)上升,玻璃托架(61)通过钢丝绳(37)将关闭力传递到力传感器(42)上,通过读取力传感器(42)的测量值即可获得被测升降器(6)的关闭力。

8.根据权利要求1或6所述的电动玻璃升降器性能与耐久性综合试验台,其特征在于,所述两根定位横梁(2)中的一根定位横梁(2)的一侧设置有止点探测组件(9);止点探测组件(9)包括立杆(93)、上止点感应器(91)、下止点感应器(92),立杆(93)上活动设置有上止点感应器(91)、下止点感应器(92),上止点感应器(91)、下止点感应器(92)能够沿立杆(93)上下移动;立杆(93)固定设置于底架(1)上;上止点感应器(91)判断玻璃是否上升到上止点,下止点感应器(92)判断玻璃是否下降到下止点。

9.根据权利要求8所述的电动玻璃升降器性能与耐久性综合试验台,其特征在于,所述底架(1)上设置有水冷组件(10),水冷组件(10)包括水泵(101)、水盆(103)、集水槽(104)、水管(102),水泵(101)设置于水盆(103)内,水泵(101)的出水口连接水管(102);

水盆(103)的两侧分别连接集水槽(104);将水管(102)的出口对准被测升降器(6)的电机,启动水泵(101),水盆(103)内的冷却水通过水泵(101)泵出,经过水管(102)喷向被测升降器(6)的电机外壳后,经集水槽(104)收集回到水盆(103)形成冷却循环。

10.根据权利要求8所述的电动玻璃升降器性能与耐久性综合试验台,其特征在于,所述上止点感应器(91)、下止点感应器(92)、力传感器(42)、位移传感器(71)分别电连接电控部分的可编程逻辑控制器,可编程逻辑控制器分别电连接电机正反转控制电路、升降器电机电压传感器、升降器电机电流传感器,电机正反转控制电路与升降器电机电连接;

上止点感应器(91)、下止点感应器(92)、力传感器(42)、位移传感器(71)将信号输入可编程逻辑控制器,并通过电机正反转控制电路控制升降器电机的转动方向,从而控制玻璃的上升或者下降;升降器电机电压传感器用于测量加到升降器电机上的电压值,升降器电机电流传感器用于测量通过升降器电机的电流值。