欢迎来到知嘟嘟! 联系电话:13336804447 卖家免费入驻,海量在线求购! 卖家免费入驻,海量在线求购!
知嘟嘟
我要发布
联系电话:13336804447
知嘟嘟经纪人
收藏
专利号: 2010102023245
申请人: 浙江大学
专利类型:发明专利
专利状态:无效专利
专利领域: 测量;测试
更新日期:2023-08-24
缴费截止日期: 暂无
价格&联系人
年费信息
委托购买

摘要:

权利要求书:

1.一种土壤剖面电导率测量方法,其特征在于该方法的步骤如下:

1)装置定位:将装置移动到待测土壤地表,并通过土壤电导率检测仪上的GPS设备自动记录地理位置信息;

2)土壤电导率检测仪归零校正:通过装置上的第一步进电机把土壤电导率检测仪抬高到距离地面1.5m高的位置,再通过第二步进电机,来控制土壤电导率检测仪的水平和垂直位置,进行归零校正程序;

3)自动升降并记录数据:通过升降土壤电导率检测仪在0.05~1.5m之间采集N个高度水平、垂直模式下的电导率,土壤电导率检测仪的高度和角度分别由施加在第一步进电机和第二步进电机上的脉冲信号决定,并通过触发开关来控制土壤电导率检测仪的测试和数据记录。最后将GPS数据、土壤电导率检测仪离地表高度值和不同高度电导率测量据全部传输到电脑中。

2.根据权利要求1所述的一种土壤剖面电导率测量方法,其特征在于其数据处理的步骤如下:

1)将数据存储器中的数据导入电脑中,获得地表以上不同高度的N个水平、垂直模式下的电导率值以及土壤电导率检测仪离地表的高度值,存放在电脑中;

2)计算地表N个高度位置的理论电导率:假设将土壤分为M层,最底层M延伸到地核深度。根据土壤电导率检测仪水平、垂直模式下的灵敏度模型,计算采集的h1,h2,...hN等N个高度处的理论电导率m(σ),存放在电脑中;

3)反演剖面电导率值:通过L-曲线法则选择最佳Tikhonov正则化参数λ,将λ代入Tikhonov正则化方程,反演剖面电导率σ,存放在电脑中;

4)整个计算采用Matlab编程实现。

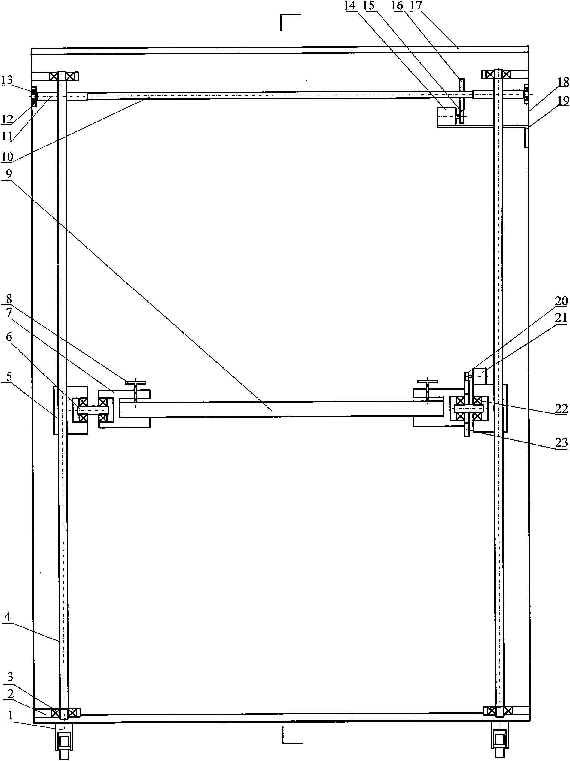
3.根据权利要求1所述方法的一种土壤剖面电导率测量装置,其特征在于:由四根连接杆和两块端板组成检测装置的框架,两根丝杆分别通过上下第一轴承和上下第一轴承座安装在各自的端板上,两个蜗轮分别固定在各自丝杆上方,两个滑块分别安装在两个蜗轮下方的两根丝杆上,两块固定块的一端分别通过连接轴和各自的第三轴承与滑块转动连接,土壤电导率检测仪安装在两块固定块的另一端间,用调节旋钮固定,蜗杆分别通过各自第二轴承和各自第二轴承座安装在两块端板之间,第二齿轮固定在第一丝杆一侧的蜗杆上,蜗轮与蜗杆相啮合,第一步进电机通过第一步进电机支架固定在第一丝杆一侧的端板上,第一齿轮固定在第一步进电机的旋转轴上,第一齿轮与第二齿轮相啮合,第二步进电机固定在第一丝杆一侧的滑块上,第三齿轮固定在第二步进电机的旋转轴上,第四齿轮固定在一侧的滑块上,第三齿轮和第四齿轮相啮合,带动土壤电导率检测仪转动,四个脚轮安装在端板底部,电脑与土壤电导率检测仪相连。